HL80C Balkónový a terasový vpust DN50/75 otočný s polymérbetónovým límcom, nezamŕzajúcou protizápachovou klapkou, 123x123mm/ 115x115mm
Kód: HL80CPodrobný popis
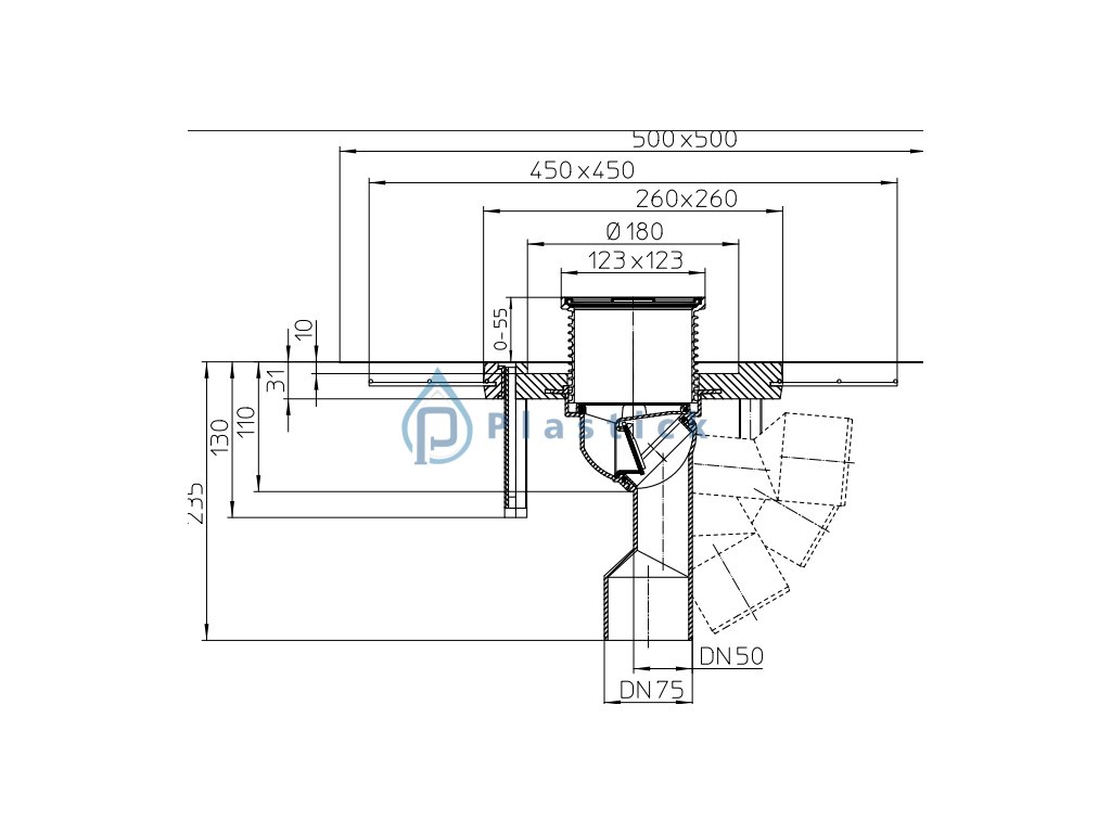
HL80C – balkónová / terasová vpust DN50/75 s otočným odtokom a „CeraDrain“ límcom
Popis produktu:
HL80C je vysoko kvalitný vpustný žľab určený pre balkóny, terasy a podlahy s priemerom odtoku DN 50/75. Vpusť je vybavená otočným kĺbom, ktorý umožňuje nastaviť odtok od horizontálnej až po vertikálnu polohu — čo zaručuje flexibilnú montáž bez ohľadu na smer odtokového potrubia. Vďaka „CeraDrain“ polymérbetónovému límcu je HL80C ideálny pre moderné tenkostenné podlahové konštrukcie, keramické dlažby alebo tenké betónové vrstvy.
Vpusť obsahuje nezamŕzajúcu, protizápachovú klapku, ktorá chráni priestor pred nepríjemnými zápachmi z kanalizácie. VRám s vrchnou nerezovou mriežkou zaisťuje stabilný a odolný povrch, vhodný do exteriérov alebo náročnejších podmienok.
Technické parametre:
-
Odtok: DN 50/75
-
Kapacita odtoku: 0,80 l/s
-
Rám / mriežka: plastový rám 123 × 123 mm (nastaviteľný výškovo 0–55 mm), nerezová mriežka 115 × 115 mm
-
Výška nadstavca: nastaviteľná v rozsahu 0–55 mm
-
Materiál: telo z plastu (PP/PE) + polymérbetónový „CeraDrain“ límec + nerezová mriežka
-
Trieda zaťaženia: K3 – do 300 kg (vhodné aj pre bežné domáce / terasové použitie)
-
Otočný odtok — možnosť nastavenia sklonu potrubia (od 0° do 90°)

Prečo zvoliť HL80C:
-
Vysoká flexibilita v inštalácii – otočný odtok umožňuje pripojenie potrubia horizontálne alebo vertikálne.
-
„CeraDrain“ límec je ideálny pre moderné tenkostenné podlahové a dlažbové konštrukcie (napr. keramická dlažba, tenká dlažba, betónový poter, terasy).
-
Zápachová klapka chráni priestor pred zanášaním zápachov z kanalizácie — vhodné nielen pre exteriér, ale aj pre vnútorné balkóny či terasy.
-
Pevná, nerezová mriežka a robustná konštrukcia zaručujú odolnosť proti poveternostným vplyvom i mechanickému zaťaženiu.
-
Nastaviteľný rám uľahčuje montáž a presné vyrovnanie podľa výšky dlažby alebo podlahy.
Ideálne použitie:
HL80C je vhodný pre balkóny, terasy, lodžie, exteriérové podlahy alebo vnútorné priestory s dlažbou, kde je potrebný spoľahlivý odtok vody a ochrana proti nepríjemným pachom. Vďaka „CeraDrain“ riešeniu je ideálny pre moderné, tenkostenné podlahové konštrukcie a dlažby.
Dodatočné parametre
| Kategória: | Žľaby a kanalizačné vpuste |
|---|---|
| Záruka: | 2 roky |
| EAN: | HL80C |
| Druh položky: | Podlahový vpust univerzálny |
| Materiál: | PP (polypropylen), nerez |
| Nosnosť: | 300 kg |
| Priemer potrubia: | 50 mm, 75 mm |
| Rozmery (DxŠxV): | 123x123 mm |
Buďte prvý, kto napíše príspevok k tejto položke.
Buďte prvý, kto napíše príspevok k tejto položke.
