Nádrž na dažďovú vodu 3000L
Kód: 1247Profesionálne poradenstvo
na trhu pôsobíme od roku 2010
Rodinná firma
ktorá má 14 rokov skúseností
Rýchlosť dodania
tovar expedujeme do druhého dňa
Veľké skladové zásoby
tovaru a materiálu
Podrobný popis
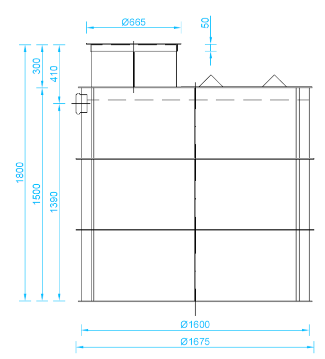
Plastová nádrž na vodu 3000L. Nádrž môžete použiť na uskladnenie dažďovej vody - prípadne ako žumpu na splaškovú vodu. Nádrž má prechod pre kanalizačnú rúru 125.
Kruhová nádrž na vodu s objemom 3000L je vhodná na uskladnenie na uskladnenie tekutých látok, ktoré nie je možné skladovať v kovových nádobách.
- Nádrž je ideálna na zadržiavanie dažďovej vody.
- Je veľmi odolná vďaka výstužným rebrám a hrúbke materiálu.
Použitie nádrže na vodu 3000L
- Táto plastová nádrž sa využíva hlavne v rodinných domoch, na záhradách a chatách na zadržiavanie ďažďovej vody na zavlažovanie.
- V prípade potreby vieme vyrobiť aj nádrž s materiálom určeným pre styk s pitnou vodou s ATESTOM.
Výhody nádrže na vodu 3000L
- Je z odolného materiálu - polypropylénu
- vieme dorobiť prechody o rôznych priemeroch v hociktorej časti nádrže
- Nádrž sa ľahko čistí vďaka širokému otvoru
- Nádrž je vhodná na uskladnenie dažďovej vody alebo splaškovej vody
- Má veľmi vysokú životnosť.
- je ľahká na manipuláciu oproti ťažkým betónovým šachtám kde je nutné použiť ťažké mechanizmi na prepravu a vykládku.
- Je odolná voči teplotám.
Rozmery nádrže na vodu:
Šírka nádrže (priemer) A = 165 cm
Výška nádrže B = 180 cm



Balenie obsahuje
- 1x samonosná nádrž na vodu 3m3
- 1x čierny poklop pre nádrž
- 1x prechod pre kanalizačnú rúru DN125
Na nádrž je možné namontovať rôzne prechody pre potrubia či hadice v ľubovoľnom počte, napríklad prechody pre potrubie - nátrubok DN32-DN250 alebo pre hadice DN20-DN110. Presné umiestnenie, typ, priemer a počet treba poslať mailom.
Dodatočné parametre
| Kategória: | Nádrže na vodu |
|---|---|
| Záruka: | 2 roky |
| EAN: | 1247 |
| Celková výška: | 1800 mm |
| Materiál: | PP - čierny |
| Objem: | 3 m3 |
| Priemer komínu: | 600 mm |
| Priemer šachty: | 1650 mm |
| Výstuhy: | áno |
| Výška komínu: | 300 mm |
| Výška nádrže: | 1500 mm |
Hodnotenie tovaru
Buďte prvý, kto napíše príspevok k tejto položke.
Diskusia
Buďte prvý, kto napíše príspevok k tejto položke.
